Italiano
520.000 €

Esclusivo quadrilocale ristrutturato a San Giovanni

4 o più locali in vendita •
Home Style Studio Immobiliare, propone in vendita in zona Re di Roma, Piazza San Giovanni, un esclusivo quadrilocale totalmente ristrutturato in un affascinante palazzo d’epoca del ‘900. Il complesso storico si trova tra Piazza San Giovanni e Piazza Re di Roma. Oltrepassando il portone d’ingresso si apre una meravigliosa corte condominiale, curata e riservata, ricca di verde, che da accesso alle varie scale del palazzo. Entrando nel vano scala condominiale dobbiamo scendere una piccola rampa per accedere all’appartamento, interamente fuori terra e libero su tre lati.
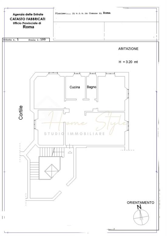
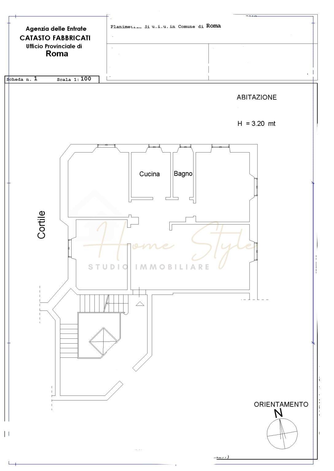
Gli spazi interni sono ben distribuiti e funzionali e sono così composti: ingresso sul soggiorno ampio e luminoso, una cucina abitabile separata da una comoda ed elegante porta scorrevole in vetro, tre camere da letto ampie e luminose e un bagno finestrato. Gli affacci sono sulla corte condominiale, quindi contesto riservato e piacevole. Gli infissi sono in pvc doppio vetro, e sono presenti grate di protezione e zanzariere. Totalmente ristrutturato con finiture moderne, viene proposto arredato.
Completano la proprietà servizio di portineria e giardino condominiale di circa 1.000 mq, costantemente curato.
Soluzione ideale per chi sceglie di vivere in un contesto riservato, nel silenzio e nel verde, un contesto raro, ideale per famiglie, bambini e momenti di relax all’aria aperta, e allo stesso tempo ci troviamo in una delle zone con un grande valore storico di Roma, importante per i collegamenti del servizio urbano e per la vicinanza di negozi e servizi.
Perfetta sia come abitazione principale, sia come investimento ad alta redditività (casa vacanze o studio professionale). Vivere nel verde, nel silenzio e a pochi minuti dal centro di Roma.
Per maggiori informazioni contattateci ai seguenti numeri +393775431607, +393884427613 (anche su whatsapp).
Caratteristiche principali
Codice
GSG520
Categoria
4 o più locali
Prezzo
520.000 €
Spese condominiali
1.200 € / anno
Locali
6
Camere
3
Bagni
1
Mq
108
Piano
Interrato
Classe energetica
G
Stato Immobile
Ristrutturato
Grado
Signorile
Posizione
Centro Storico
Panorama
Vista Giardino
Orientamento
Est Nord Ovest
Lati Liberi
3
Giardino
Comune
Arredi
Arredato
Tipo Soggiorno
Doppio
Tipo Cucina
Abitabile
Riscaldamento
Centralizzato
Tipo Riscaldam.
Caldaia
Tipo Impianto
Radiatori
Fonte Energetica
Metano
Acqua Calda
Centralizzata
Raffrescamento
No
Infissi
PVC Doppio Vetro
Serramenti
Nuovo
Persiana
Tapparella Metallo
Pavim. Giorno
Gres Porcellanato
Pavim. Notte
Gres Porcellanato
Pavim. Cucina
Gres Porcellanato
Pavim. Bagno
Gres Porcellanato

Accessori: Armadio a Muro, Ascensore, Cancello Elettrico, Doppi Vetri, Fibra Ottica, Parco Condominiale, Porta Blindata, Portineria/Custode, Tapparelle Elettriche, Zanzariere

Distanze
Posizione
Centro3 km
Condividi su
Cookie preference